Drafting Services in Taree
Get in Touch in Taree
Thank you for contacting Mid North Coast Drafting & Construction.
We will be in touch soon.
Please try again later.
Smart, Seamless Plans
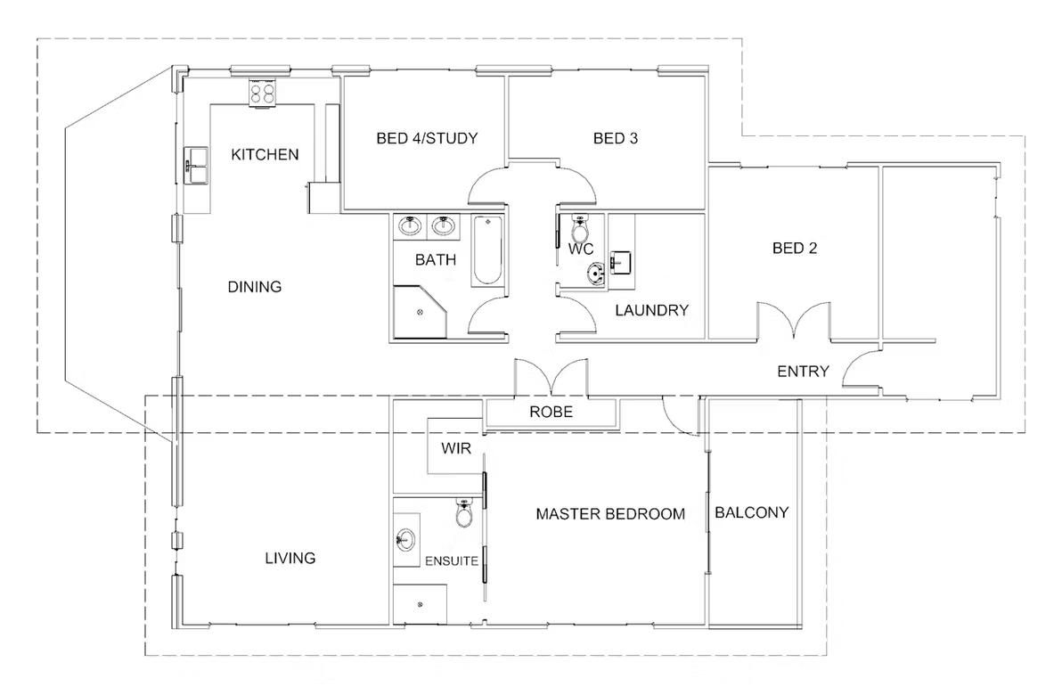
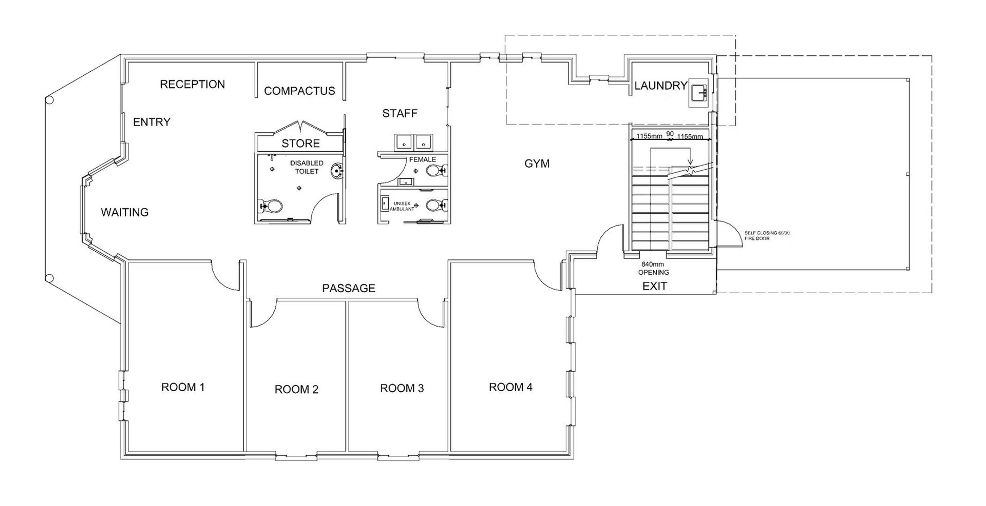
At Mid North Coast Drafting & Construction in Taree, we make the process of planning your home, renovation, or extension simple and stress-free. With advanced 3D design tools and local expertise, we create accurate plans tailored to your needs.
Designed Around Your Lifestyle
Your home should fit the way you live, not the other way around. We design plans that reflect your lifestyle, whether it’s a growing family, extra space for guests, or modern functionality.
See Your Plans in 3D
We take the guesswork out of building by using the latest 3D imaging technology. You’ll see exactly how your new home or renovation will look, giving you confidence before construction starts.
Experienced Local Knowledge
With decades of experience in the building industry, we understand local council requirements, zoning rules and construction needs. Our experience means your plans are not only creative but also practical and compliant.
Plans That Work for You
Drafting services aren’t just about lines on a page — they’re about creating spaces that work for your everyday life. We focus on accuracy, detail and clarity so your builder has everything needed to bring your design to life without confusion or costly mistakes.
We use advanced CAD software and 3D visualisations to show you the bigger picture. This gives you the freedom to refine your ideas before you commit. When you’re ready, we provide clear, builder-ready plans designed to save time and money. Call us today on 0438 408 123 to get started with your drafting project.
What is drafting and why is it important?
Drafting is the process of creating detailed technical drawings that show exactly how a building will be constructed. These plans are essential because they provide clear instructions for builders, help with council approvals, and ensure that the design meets structural and safety standards. Without professional drafting, projects risk costly errors, delays, or miscommunication during construction.
Do I need a drafter or an architect for my project?
For most homes, renovations, extensions, and smaller developments, a drafter is the more practical and cost-effective choice. Drafters specialise in creating accurate, functional plans tailored to your project. Architects are often required for large, complex or highly specialised buildings, whereas drafters are ideal for residential and small commercial projects. Many people choose a drafter because they combine local building knowledge with affordability.
How much do drafting services usually cost?
The cost of drafting services depends on the size and complexity of your project. Simple renovations or extensions may only require a few hours of drafting, while full house or multi-unit designs will take longer. Pricing usually reflects the time, detail, and compliance checks needed. Investing in accurate plans often saves money later by avoiding construction delays or design errors.
What should I prepare before meeting a drafter?
Before meeting a drafter, it helps to gather inspiration, ideas, and a clear list of your needs and must-haves. Bring any existing site plans, council requirements, or photos of the property. The more information you provide, the easier it is for a drafter to create plans that suit your lifestyle, budget, and long-term goals.








